Project Image Project Image Mobile

Radheya Sai Enclave Naigaon E

By M/S. Radheya Construction Company


Type

Residential


Configuration

1BHK & 2BHK


Location

Naigaon East


Possession

December 2029

Radheya Sai Enclave
Naigaon (E)
By
M/S. Radheya
Building Image
Radheya Construction Company has lauched Radheya Sai Enclave in Naigaon West, Mumbai. The project was launched in May 2022. It offers Under Construction units. The possession date of Radheya Sai Enclave is Dec, 2029. The address of Radheya Sai Enclave is Tivari Road, Near ama Dhaba, Naigaon East.

QR Code

Enjoy the
comfort with
Amenities

Gymnasium

Gymnasium

Kids play area

Kids Play Area

Indoor Games Room

Indoor Games Room

Meditation Area

Meditation Area

Senior Citizen Area

Senior Citizen Area

jogging track

Jogging Track

Yoga Zone

Yoga Zone

Park

Park

rooftop deck

Rooftop Deck

Outdoor Lounge

Outdoor Lounge

Property Location

Radheya Sai Enclave Naigaon(E)

Get Direction

Layout

1 BHK Layout
1 BHK - Rs. 37.8 Lacs ++
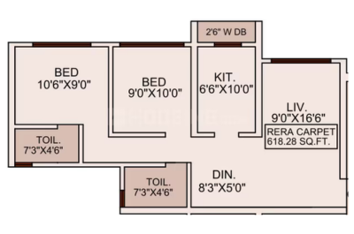
2 BHK Layout
2 BHK - Rs. 61.6 Lacs ++